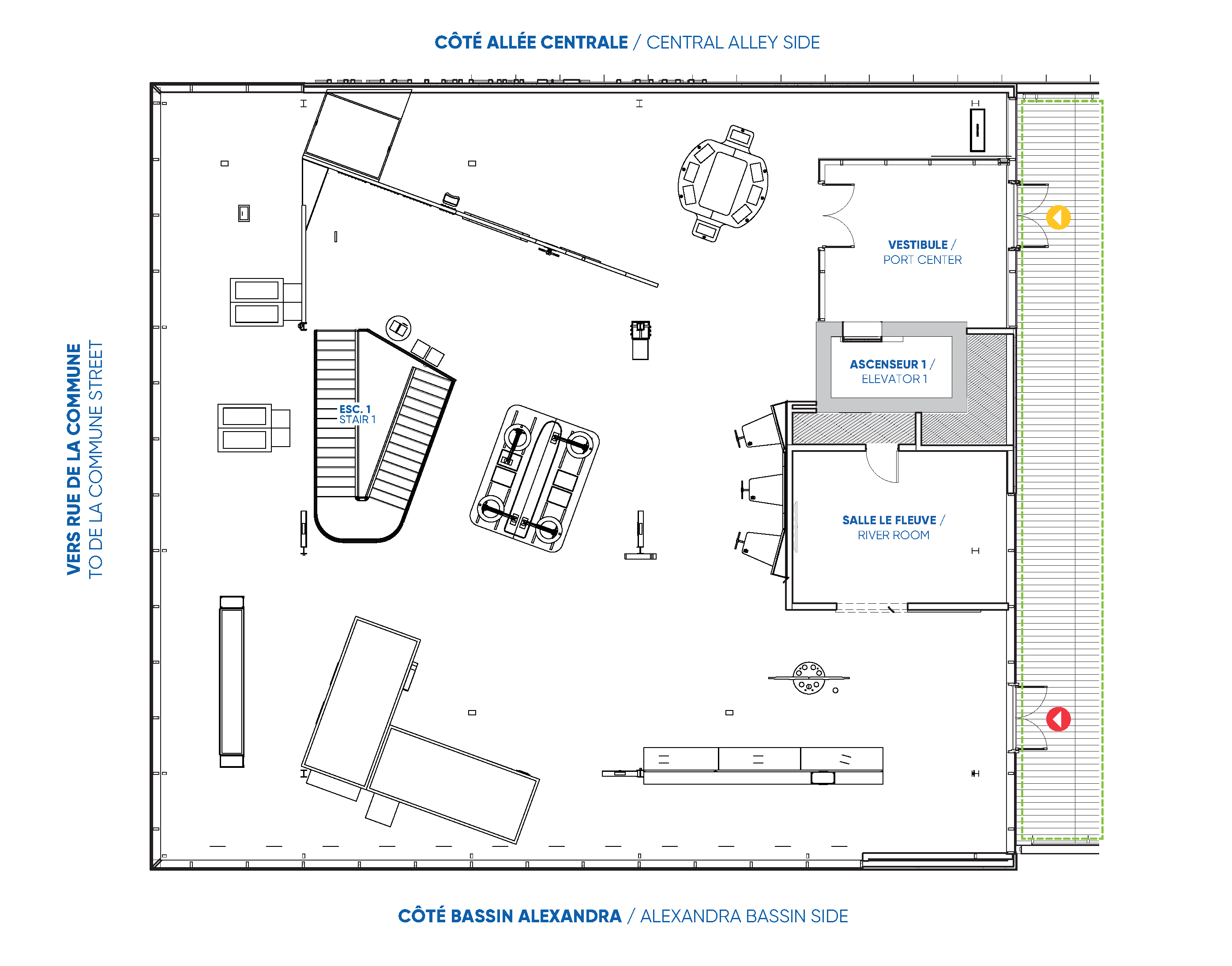
Centre d'interprétation portuaire
Accès des lieux loués
Salle située au 2e étage
En voiture : par le niveau 2 du stationnement avec un accès piétons par la passerelle
À pied : par la Promenade d’Iberville (Toit vert) – via la rue de la Commune Ouest
Portes au rez-de-chaussée
Accès pour livraisons, escaliers ou ascenseur disponible pour mobilité réduite
Entrée principale : 2 portes doubles avec vestibule (via rue de la Commune Ouest)
Porte secondaire : 1 porte double (porte #1)
Portes au niveau 2
Porte toit vert section Centre d’interprétation portuaire – côté Est (Située sur le toit vert / Promenade d’Iberville)
Une porte double avec vestibule vers l’ascenseur
Porte toit vert section Centre d’interprétation portuaire – côté Ouest (Située sur le toit vert / Promenade d’Iberville)
Une porte double

Salle située au 2e étage
Plan de l'Allée centrale: Espaces et Accès

Guide de livraison
- Salle au niveau 2
OPTION 1* : Par la passerelle via le stationnement (Terminal 2, niveau 2)
*L’accès au stationnement est gratuit pour les camions de livraison seulement
OPTION 2 : Par l’ascenseur de service via la porte #1 (Terminal 1, niveau 1)
AUCUN MONTE-CHARGE
OPTION 3 : Par les escaliers de la Promenade d’Iberville (Toit vert)
Livraisons hors dimensions
Il est possible d’utiliser les escaliers en bois du toit vert, du côté ville. Un camion à la fois sera autorisé au bas des escaliers et l’endroit devra être sécurisé. Aucun véhicule ne sera autorisé sur la Promenade du Vieux-Port. Une autorisation est requise auprès de votre coordonnateur avant l’événement.
Dimensions
Centre d’interprétation portuaire
4 908 pi2 (456 m2)
79’9’’ x 72’4’’ (24,4 m x 22 m)
Promenade d’Iberville – Toit vert – section Centre d’interprétation portuaire
1 524pi2 (142 m2)
20’9’’ x 64’2’’ (6.4 m x 19,57 m)
Colonnes et plafond
Hauteur du plafond - Poutre principale :
15'10'' (4,83 m)
Hauteur du plafond - Poutre secondaire :
16'07'' (5,05 m)
Salle le fleuve
20'4'' x 14'4'' (6.20 m x 4.37 m)
Largeur de l'encadrement de la porte coulissante :
6'4'' (1.93 m)
Dimension des portes
Porte double:
71’’ x 105 ‘’ (180,34 cm x 266,7 cm)
SPÉCIFICATIONS TECHNIQUES
Électricité
Plusieurs prises électriques au plancher et sur les colonnes (15 amp.)
Le client est responsable de fournir les adaptateurs requis pour ses équipements (ex. : prise de poêle).
Écran
1 écran 75’’ portrait (À l’entrée principale – côté de la Commune)
Poutre d’accrochage
L’accrochage est autorisé sur les poutres d’acier uniquement. Aucun accrochage n’est permis sur la tuyauterie, les conduits électriques ni le système éclairage. En cas de doute, référez-vous à l’agent logistique sur place.
Store
Stores automatiques gris semi-opaques dans toutes les fenêtres. Prendre note qu’il n’y a pas de store devant les portes et dans les fenêtres du haut.
Éclairage
Système de lumières LED blanches uniquement pouvant être contrôlé à l’aide d’un gradateur pour modifier l’intensité. Aucune manipulation d'appareil n'est autorisée (ex.: attacher ou incliner les luminaires).
Installation permanente
Le Centre d’interprétation accueille une exposition permanente : À bon port!
Il est impossible de déplacer les équipements et le mobilier en place.
https://www.port-montreal.com/fr/grand-quai/espaces-publics/centre-interpretation
Espaces Connexes

Salle Le Fleuve

Liste des équipements
- TV murale 65’’
- 1 grande table non amovible
- 10 chaises exécutives
- Mini-frigo
- 1 console
La salle Le Fleuve se situe à même le Centre d’interprétation portuaire. La salle est incluse dans la location de l’espace.
La salle peut service de salle d’appoint pour le traiteur, mais la cuisson est interdite. Une protection sera requise sur la table.
Vestiaire
Aucun espace vestiaire aménagé dans la salle.
Le locataire doit prévoir les équipements et le personnel à l’endroit de son choix.
L’APM se dégage de toute responsabilité en cas de perte, vol ou actes illégaux qui pourraient être commis à l’endroit du Locataire, de ses invités ou de tierces personnes sur les Lieux Loués ou ailleurs sur le site.
Espace Portuaire

Liste des équipements
- 4 bancs
- 4 fauteuils
- 1 table
- 1 tapis rond
- 4 maquettes de navires (non amovible).
Le Locataire pourra utiliser l’aire de circulation et les aires communes du Grand Quai menant au terminal afin de recevoir ses invités pour l’événement. Le Locataire devra toutefois s’assurer de ne pas gêner la circulation au Grand Quai et devra affecter des ressources, à ses frais, afin de diriger adéquatement les invités au Grand Quai et collaborer avec les autorités en place.
Toilettes
Les toilettes se situent au Terminal 1 (rez-de-chaussée)
Afin de respecter les exigences concernant les installations sanitaires, il doit y avoir au minimum 1 toilette par groupe de 300 hommes et 1 toilette par groupe de 150 femmes.








